0120-445-277 / 平日9:00〜18:00
ラルステイ仙台西公園Ⅲ
光熱費無料キャンペーン実施中!
ラルステイ仙台西公園Ⅲ
仙台市地下鉄東西線大町西公園駅 徒歩2分
仙台市地下鉄東西線青葉通一番町駅 徒歩11分
仙台市地下鉄東西線国際センター駅 徒歩12分














| 所在地 | 宮城県仙台市青葉区片平1丁目 |
|---|---|
| 最寄り駅 | 仙台市地下鉄東西線大町西公園駅 徒歩2分 仙台市地下鉄東西線青葉通一番町駅 徒歩11分 仙台市地下鉄東西線国際センター駅 徒歩12分 JR仙石線あおば通駅 徒歩17分 JR東北本線仙台駅 徒歩19分 仙台市営南北線広瀬通駅 徒歩18分 |
| 築年数 | 2021年1月 |
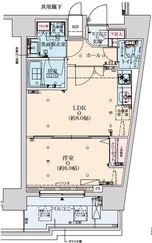
| 間取り | 1LDK |
| 構造 | 鉄筋コンクリート造 / 14階建 |
| 専有面積 | 35.63m² |
| 最大人数 | 4人 |
おすすめポイント

2駅以上利用可

コンビニ徒歩5分以内

無料Wi-Fi

ペット可

バストイレ別

洗濯機

オートロック

浴室乾燥機

エレベーター
◎ その他のポイント
- 宅配ボックス
- 角部屋
- 24時間ゴミ出し可能
- 人感センサー付き玄関照明
- 光熱費無料
設備・備品
| 建物設備 | オートロック、エレベーター、宅配BOX、有料駐車場、有料駐輪場 |
|---|---|
| 寝具 | ベッド(セミダブル)1組 和布団(シングル)1組 ※2名様以上の場合 |
| 部屋設備 | インターネット対応(無料)、Wi-Fi対応、クローゼット、バス・トイレ別、フローリング、洗浄機能付き便座、洗濯機置き場(室内)、冷暖房完備、バルコニー |
| 家具 | イス、カーテン付き、シーツ類、ソファー、テーブル、テレビ台、デスク、ベッド、寝具一式 |
| 家電 | エアコン、テレビ、ドライヤー、炊飯ジャー、洗濯機、掃除機、電気ポット、電子レンジ、冷蔵庫 |
| キッチン類 | お玉、まな板、ガスキッチン、ガスコンロ、キッチン洗剤、システムキッチン、スポンジ、スポンジ入れ、フライパン、フライ返し、三角コーナー、食器類、鍋、布巾、包丁、ボール・ザル |
| バス・トイレ類 | トイレットペーパー、シャワー、バスタブ、タオル、トイレ洗剤、ハンドソープ、バスマット、バス洗剤、洗面所独立、脱衣所、風呂用スポンジ、浴室乾燥機 |
| 備品、消耗品 | ゴミ箱、ティッシュ、ハンガー、靴べら、雑巾、室内物干し、物干し竿、目覚まし時計 |
| その他 | ガス、トイレ、下水道、給湯設備、上水道、分譲タイプ、浴室 |
| 防災設備 | 火災警報器、消火器 |
オプション
備品オプションに関しては、こちらから
| 食器セット (Aセット) | グラス マグカップ 皿一式 (洋皿: 3枚、茶碗) 箸・スプーン・フォーク | 2800円 |
|---|---|---|
| 調理器具セット (Bセット) | 三角コーナー フライパン (26センチ) 片手鍋 (18センチ) 包丁 まな板 フライ返し・お玉 ボール・ザル | 6500円 |
| 洗剤・雑貨セット (Cセット) | 風呂洗剤 トイレ洗剤 台所洗剤 ハンドソープ 風呂スポンジ 台所スポンジ スポンジ入れ 目覚まし時計 布巾 雑巾 | 3800円 |
布団オプションに関しては、こちらから
| 和布団セット | 敷布団 掛布団 枕 シーツ 掛布団カバー 枕カバー | 7400円/一式 |
|---|
その他オプションに関しては、こちらから
| 鍵交換 | 鍵の交換はオプションとなっております | 25,000円 |
|---|---|---|
| ペット同伴 | ペット利用時清掃費 | 5,000円 |
所在地
周辺のおすすめ観光地










